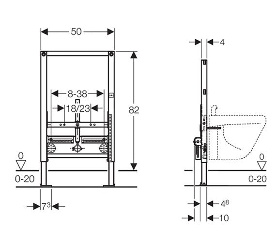
Geberit Duofix Basin Frame
SKU 111495001
by Geberit
112cm
Complete with pre wall brackets, chrome isolating valves, back plate elbows & waste pipe clamp